产品简介
螺旋输灰机是火力发电厂除灰系统连续输送煤灰的主要设备,根据其工作原理,还可用于水泥、沙石、粮食等物料输送。本厂螺旋输灰机有干式、湿式及干湿混合三种,湿式螺旋输灰机的喷水量可在工作运行中随时调节,供水压力设计为0.2-0.3MPa。
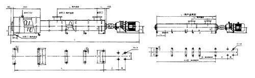
输灰机机身段制造,机罩密封严密,运行时能在不同位置上卸装,机身长度可在3-70M间选择,超过40M长度的输灰机宜用双端传动结构,工作温度允许高达220℃,大出力的规格按国家标准执行。 |
◆湿式
|
型号
|
输灰能力
|
减速机型号
|
转速r.p.m
|
功率kW
|
电压V
|
|
Ф300/Ф400湿式螺旋输灰机
|
10-30T/h
|
BWY5.5-4-29
|
48
|
5.5
|
380
|
|
Ф400/Ф500螺旋输灰机
|
40-60T/h
|
BWY7.5-4-29
|
48
|
7.5
|
380
|
|
外形连接尺寸mm
|
型号
|
H
|
H1
|
h
|
L2
|
L3
|
L4
|
L
|
A
|
B
|
C
|
D
|
E
|
F
|
G
|
n-Ф
|
|
Ф300/Ф400湿式螺旋输灰机
|
270
|
270
|
200
|
600
|
480
|
3590
|
5100
|
380
|
260
|
318
|
240
|
320
|
240
|
320
|
4-Ф23
|
|
Ф400/Ф500螺旋输灰机
|
400
|
340
|
200
|
350
|
535
|
9435
|
11100
|
380
|
260
|
318
|
210
|
400
|
400
|
500
|
4-Ф23
|
|
|
|
◆干式
|
型号
|
|
0-20m
|
0-40m
|
40-70m(采用双传动)
|
|
减速机
型号
|
转速r.p.m
|
功率Kw
|
电压V
|
减速机
型号
|
转速r.p.m
|
功率Kw
|
电压V
|
减速机
型号
|
转速r.p.m
|
功率Kw
|
电压V
|
|
HLS-200
|
6-9
|
BWY2.2-3-35
|
42.5
|
2.2
|
380
|
BWY-5.5-4-35
|
42
|
5.5
|
380
|
BWY-5.5-4-35
|
42
|
5.5
|
380
|
|
HLS-300
|
12-20
|
BWY5.5-4-29
|
51.7
|
5.5
|
380
|
BWY-11-5-35
|
42
|
11
|
380
|
BWY-11-5-35
|
42
|
11
|
380
|
|
HLS-400
|
25-35
|
BWY11-5-35
|
42
|
11
|
380
|
BWY18.5-6-23
|
42
|
18.5
|
380
|
BWY18.5-6-23
|
42
|
18.5
|
380
|
|
HLS-500
|
40-60
|
BWY18.5-29
|
51.1
|
22
|
380
|
BWY22-6-17
|
56
|
22
|
380
|
BWY22-6-17
|
56
|
22
|
380
|
|
外形连接尺寸mm |
|
项目
|
螺旋机螺旋直径
|
H
|
L1
|
L3
|
E
|
F
|
b
|
|
HLS-200
|
200
|
180
|
300
|
300
|
140
|
200
|
16
|
|
HLS-300
|
300
|
270
|
350
|
350
|
240
|
320
|
20
|
|
HLS-400
|
400
|
340
|
400
|
400
|
320
|
400
|
25
|
|
HLS-500
|
500
|
400
|
500
|
500
|
400
|
500
|
25
|
|
|
|
机号
|
A
|
B
|
h
|
c
|
n-Ф
|
|
3
|
370
|
150
|
160
|
275
|
4-Ф23
|
|
4
|
380
|
260
|
200
|
288
|
4-Ф23
|
|
5
|
480
|
380
|
380
|
275
|
4-Ф27
|
|
6
|
560
|
480
|
480
|
360
|
4-Ф27
|
|