一、产品简介
本设备由普通排水器和煤气排水器防止泄漏煤气装置组合而成,利用水封高度克服煤气压力,从而封住煤气。当煤气管网压力波动或其它原因引起的排水器有效水位异常降低,造成的煤气泄漏时,通过煤气排水器防止泄漏煤气装置可有效地遏止煤气的外泄,防止煤气着火、爆炸、中毒等恶性事故的发生。
本产品设计独特,结构紧凑,安装维护方便,使用寿命长,同时便于观察排水器密封水位,因而提高了工作效率,减轻了劳动强度,尤其在异常时能有效地遏止泄漏煤气造成的灾害。本排水器使用时根据水封高度,确定溢流口高度进而确定防止泄漏煤气装置安装高度。正常工作时,排水器中充满水至溢口溢水为止,此时可观察到防止泄漏煤气装置中指示杆伸出筒外,如工作过程中观察不到指示杆,表明排水器中水位已降低,应及时补水;当观察到指示器伸出指示杆外时,表明排水器内水封已经被击穿,此时应及时切断冷凝水进口处阀门,待排水器内重新加水至正常工况后,方可继续工作。
一般情况,水封高度大于2000mm时应采用双室或三室结构,使溢水口处于2000mm以下,便于观察排水器工作状况。如果煤气管路水封高度大于2000mm,水封器仍采用单室结构,此时应将溢流口安置于相应水封高度的位置,同时在水封器溢水管与防煤气泄漏装置之间相应地连接一段钢管。
另外,排水器可通过增加相应的室来降低其垂直高度。用户如对排水器有特殊要求,本厂可专门设计制作。
二、外形及相关尺寸 |
|
|
|
|
|
|
|
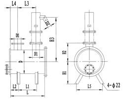
最低工作压力≤16KPa防泄漏煤气排水器外形图
|
最低工作压力>16KPa防泄漏煤气排水器外形图
|
|
三、产品技术参数
最低工作压力≤16KPa 防泄漏型煤气排水器外形尺寸
|
型号
|
H3
|
D1
|
D2
|
D
|
L
|
L1
|
L2
|
L3
|
L4
|
L5
|
H1
|
H2
|
|
LP-800-1
|
1340
|
Φ108
|
Φ89
|
Φ312
|
600
|
400
|
100
|
350
|
125
|
300
|
330
|
300
|
|
LP-1200-1
|
1740
|
|
LP-1600-1
|
2140
|
|
LP-800-2
|
1340
|
Φ133
|
Φ89
|
Φ362
|
650
|
400
|
125
|
300
|
175
|
320
|
330
|
300
|
|
LP-1200-2
|
1740
|
|
LP-1600-2
|
2140
|
|
LP-800-3
|
1340
|
Φ159
|
Φ89
|
Φ414
|
800
|
530
|
135
|
400
|
200
|
300
|
350
|
350
|
|
LP-1200-3
|
1740
|
|
LP-1600-3
|
2140
|
|
LP-800-4
|
1340
|
Φ219
|
Φ108
|
Φ618
|
900
|
500
|
200
|
450
|
225
|
700
|
500
|
450
|
|
LP-1200-4
|
1740
|
|
LP-1600-4
|
2140
|
|
LP-800-5
|
1340
|
Φ273
|
Φ108
|
Φ618
|
1000
|
600
|
200
|
500
|
250
|
700
|
500
|
500
|
|
LP-1200-5
|
1740
|
|
LP-1600-5
|
2140
|
|
LP-800-6
|
1340
|
Φ325
|
Φ108
|
Φ720
|
1150
|
730
|
210
|
550
|
300
|
700
|
520
|
530
|
|
LP-1200-6
|
1740
|
|
LP-1600-6
|
2140
|
|
| |
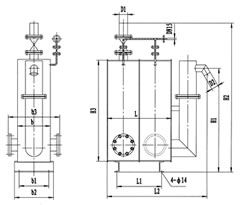
最低工作压力>16KPa 防泄漏型煤气排水器外形尺寸
|
型号
|
H3
|
H1
|
H2
|
D1
|
D2
|
b
|
b1
|
b2
|
b3
|
L
|
L1
|
L2
|
|
LP-2200-1b
|
1350
|
1375
|
1970
|
Φ108
|
Φ89
|
370
|
350
|
450
|
580
|
730
|
500
|
1190
|
|
LP-3000-1b
|
1750
|
1785
|
2370
|
|
LP-2200-2b
|
1350
|
1375
|
1995
|
Φ133
|
Φ89
|
370
|
350
|
450
|
580
|
730
|
500
|
1190
|
|
LP-3000-2b
|
1750
|
1785
|
2395
|
|
LP-2200-3b
|
1350
|
1375
|
2020
|
Φ159
|
Φ89
|
470
|
450
|
550
|
680
|
930
|
600
|
1390
|
|
LP-3000-3b
|
1750
|
1785
|
2455
|
|
LP-2200-4b
|
1370
|
1395
|
2090
|
Φ219
|
Φ108
|
520
|
500
|
600
|
730
|
1030
|
630
|
1490
|
|
LP-3000-4b
|
1770
|
1795
|
2490
|
|
LP-2200-5b
|
1370
|
1395
|
2140
|
Φ273
|
Φ108
|
520
|
500
|
600
|
730
|
1030
|
630
|
1550
|
|
LP-3000-5b
|
1770
|
1795
|
2540
|
|
LP-2200-6b
|
1370
|
1395
|
2180
|
Φ325
|
Φ108
|
570
|
550
|
650
|
780
|
1130
|
670
|
1700
|
|
LP-3000-6b
|
1770
|
1795
|
2580
|
|
| |