|
HD-SFX型烧结机配套风机消声器系列
加入时间:2015-11-28 10:14:26 点击:次 |
一、结构形式
烧结机配套风机消声器系阻片式结构,整个系列可与不同风量的风机配套。
二、适用范围
主要用于控制与烧结机配套主轴风机,机尾除尘风机,粉焦除尘等风机放散气体产生的动力性噪声。
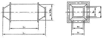
三、SFX型烧结机配套风机消声器系列外形示意图 |
|
|
|
|
四、规格、性能、外形尺寸 长度单位:mm
|
消声器
型号
|
适型风机
风量m3/min
|
外形尺寸
|
法兰尺寸(mm)
|
消声量
dB(A)
|
压力损失
Pa
|
|
L
|
L2
|
a2×b2
|
a0×b0
|
a1×b1
|
n-d
|
|
SFX-1
|
1600-2500
|
2500
|
2000
|
2228×2400
|
1200×1815
|
1320×1950
|
51-Φ30
|
>20
|
≤200
|
|
SFX-2
|
3250-4750
|
4000
|
2000
|
3400×4000
|
1800×2500
|
1920×2620
|
63-Φ30
|
>20
|
≤200
|
|
SFX-3
|
6500-7150
|
4500
|
2500
|
2800×4200
|
2000×3000
|
2120×3120
|
76-Φ30
|
>25
|
≤200
|
|
SFX-4
|
8000-9000
|
5000
|
3000
|
3964×4200
|
2500×3000
|
2620×3120
|
84-Φ30
|
>30
|
≤200
|
|
SFX-5
|
12000-13000
|
5500
|
3000
|
4284×5000
|
2800×3800
|
2920×3800
|
86-Φ30
|
>30
|
≤200
|
|
SFX-6
|
16000-17000
|
6500
|
500
|
3810×6105
|
2800×5000
|
2920×5120
|
80-Φ30
|
>30
|
≤200
|
|
| |
|
上一页:HD-ZK型蒸汽、空气放空消声器系列
下一页:HD-LK型高中压离心风机消声器系列 |
| [ 其它相关文章 ] |
|