一、概述
视镜是工业管道装置上主要附件之一,在石油、化工、医药、食品等工业生产装置的管道中,视镜能随时观察管道中液体、气体、蒸汽等介质流动及反应情况,直到监视生产,避免生产过程中事故发生作用。 |
|
|
| 二、标注示例 |
 |
例:HDⅠ40-2.5/S。LG视镜,类型代号为
对夹式,DN=40mm,PN=2.5MPa,材质为不锈钢。 |
|
◆视镜类型代号 表1
|
形式
|
对夹式
|
单压式
|
螺纹压紧式
|
管型
|
浮球式
|
|
代号
|
I
|
II
|
III
|
IV
|
V
|
|
三、产品规格及主要参数
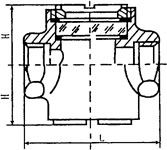
1、HD I型(对夹式)视镜,工作温度0~180℃,允许急变温度<60℃,见图1,表2。 |
◆HD I型(对夹式) 表2
|
公称直径
|
窗径W
|
管内径D
|
≈H
|
L
|
|
PN≤1.6
|
PN≤2.5
|
|
10
|
42
|
40
|
75
|
140
|
160
|
|
15
|
42
|
40
|
75
|
140
|
160
|
|
20
|
50
|
50
|
85
|
160
|
180
|
|
25
|
52
|
50
|
85
|
160
|
180
|
|
40
|
62
|
60
|
115
|
180
|
200
|
|

图1 HD I型(对夹式)
|
|
| 2、HD Ⅱ型(单压式)视镜,工作温度0~180℃,允许急变温度<60℃,见图2,表3。 |
◆ HD Ⅱ型(单压式) 表3
|
公称直径DN
|
窗径W
|
管内径
|
PN0.6
|
PN1.0/0.6
|
PN2.5
|
|
D
|
H
|
L
|
H
|
L
|
H
|
L
|
|
50
|
80
|
80
|
200
|
220
|
200
|
220/230
|
210
|
250
|
|
65
|
90
|
90
|
230
|
250
|
230
|
250/260
|
240
|
270
|
|
80
|
100
|
100
|
245
|
270
|
245
|
270/270
|
270
|
320
|
|
100
|
125
|
125
|
330
|
320
|
330
|
320/320
|
-
|
-
|
|
125
|
150
|
150
|
340
|
360
|
-
|
-
|
-
|
-
|
|
150
|
200
|
200
|
350
|
420
|
-
|
-
|
-
|
-
|
|

图2 LGⅡ型(单压式)
|
|
3、HDⅢ型(螺纹压紧式)视镜,该视镜适用于温度≤200℃的蒸汽管网疏水阀后,以观察疏水阀的漏气情况。
这种视镜可装在垂直管道或水平管道上。见图3,表4。 |
◆ HD Ⅲ型(螺纹压紧式) 表4
|
公称直径DN
|
L
|
H
|
|
PN≤1.6
|
PN≤2.5
|
|
15(LGZG1/2")
|
89
|
32
|
35
|
|
20(LGZG3/4")
|
89
|
32
|
35
|
|
25(LGZG1")
|
89
|
35
|
35
|
|

图3 LGⅢ型(螺纹压紧型)
|
|
4、HD Ⅳ型(管型)视镜, 工作温度≤80℃, 允许急变温度<60℃, 见图4, 表5。 |
◆ HDⅣ型(管型) 表5
|
DN
|
D0
|
V
|
H
|
L
|
|
15
|
32
|
80
|
70
|
220
|
|
20
|
45
|
80
|
70
|
220
|
|
25
|
58
|
80
|
70
|
220
|
|
40
|
74
|
80
|
70
|
220
|
|
50
|
89
|
80
|
80
|
240
|
|
65
|
110
|
80
|
80
|
240
|
|

图4 LGⅣ型(管型)
|
|
5、HDⅤ型(浮球)视镜,工作温度≤80℃,允许急变温度<60℃。
(1)HDⅤ-1型为螺纹连接浮球视镜,见图5,表6。
(2)HDⅤ-2型为法兰连接浮球视镜,见图6,表7。 |
◆ HDⅤ-1型(螺纹连接浮球式) 表6
|
公称直径DN
|
d
|
D1
|
D
|
L
|
H
|
公称压力PN
|
|
20
|
16
|
LGZG3/4"
|
38
|
120
|
70
|
≤1.0
|
|
25
|
16
|
LGZG1"
|
40
|
120
|
70
|
|
32
|
16
|
LGZG11/4"
|
50
|
124
|
70
|
|
40
|
16
|
LGZG11/2"
|
56
|
124
|
80
|
|
50
|
16
|
LGZG2"
|
66
|
124
|
80
|
|

图5 LGⅤ-1型
|
|
◆ HD Ⅴ-2型(法兰连接浮球式) 表7
|
公称直径DN
|
d
|
D1
|
D
|
L
|
H
|
公称压力PN
|
|
65
|
65
|
130
|
160
|
340
|
260
|
≤0.6
|
|
80
|
80
|
150
|
185
|
340
|
267
|
|
100
|
100
|
170
|
205
|
340
|
277
|
|
125
|
125
|
200
|
235
|
340
|
290
|
|
150
|
150
|
225
|
260
|
340
|
290
|
|

图6 LGⅤ-2型
|
|